| Cuneese
Peveragno: stasera incontro pubblico sul nuovo polo scolastico

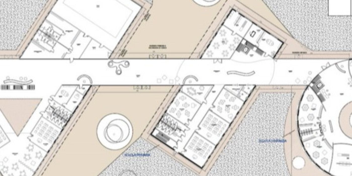
Un confronto aperto con i cittadini per spiegare scelte, tempi e prospettive del nuovo polo scolastico. L’appuntamento è fissato per oggi, giovedì 12 marzo, alle 20,45 nella sala del centro polifunzionale “A La Sousta”, dove l’amministrazione comunale di Peveragno incontrerà la popolazione per fare il punto su uno dei progetti più rilevanti in programma per il paese.Nel corso della serata verrà illustrato lo stato di avanzamento dell’iniziativa che prevede la realizzazione di tre edifici destinati a ospitare le scuole del territorio, destinati a sostituire l’attuale plesso situato in centro...









